'Eerste sleutel' op zijn vroegst medio 2016
Het zal nog minstens tot medio 2016 duren voordat er sprake zal kunnen zijn van het ‘uitreiken van de eerste sleutel’ voor mogelijke nieuwe bewoners aan de nieuwbouw aan de Grote Buitendijk of in het gebied Hofgeest.
• Grote opkomst presentatie plannen Grote Buitendijk/Hofgeest
• Nieuwe rondweg werd massaal van de hand gewezen
• Plannen kunnen nog op diverse details worden aangepast
• Voorbeeld van moeizaame start, maar uiteindelijk succesvol participatietraject met de gemeente
• Politiek nauwelijks aanwezig

In basisschool ’t Anker kwamen gisteravond ongeveer 160 mensen bijeen om de eerste versie van de tekeningen van het gebied Grote Buitendijk/Hofgeest te bekijken. 100 mensen hadden zich bij de gemeente aangemeld maar het aantal extra bezoekers aan de hand van onze mailing deed de temperatuur in de aula van de basisschool aan de Grote Buitendijk flink toenemen.
Het leeft duidelijk in de wijk: wat gaat er gebeuren met het groen, de dieren, het verkeer en de leefbaarheid?
Na een inleiding van Peter Luit vanuit de Actiegroep Velserbroek Oost werd door de projectleider Arnold Los geschetst wat de uitgangspunten waren. In 2008 is er een zogenaamde ‘nota van uitgangspunten’ gemaakt, december 2009 heeft de gemeenteraad scenario B (ingebracht door actiegroep/westwijk/vsv) ‘omarmd’ en in februari van dit jaar hebben buurtbewoners mogen ‘knippen en plakken’.
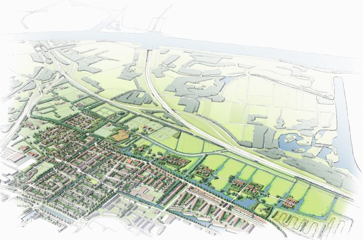
Die schetsen en de uitgangspunten zijn door Berry van Elderen in de nu voorliggende plannen verwerkt. De tekeningen die u op de site ziet zien er aantrekkelijk uit, een groene en landelijke uitstraling. Aan het gebied Grote Buitendijk 80 (kleinere) woningen in plaats van de oorspronkelijke 70 grotere woningen, in het gebied Hofgeest kunnen 220 woningen worden gebouwd. Daarmee komt het totaal op ca. 300, zo een 70 minder dan de gemeenteraad had voorgesteld. Ondanks dat lagere aantal bleek de gemeenteraad tijdens een interne bijeenkomst afgelopen woensdag grotendeels positief over de plannen te zijn.
Kritische noten kwamen vooral van de kant van de bewoners van de Hofgeest: ‘wij krijgen de zwarte piet’. Er is daar echter ook goed nieuws te melden: de Hofgeesterweg wordt autoluw gemaakt en er komen kleine parkjes.
Het plan lijkt haalbaar als er geld is voor ‘bovenwijkse voorzieningen’, marktpartijen (lees: projectontwikkelaars) belangstelling hebben en er toestemming komt van de provincie. De economische situatie in ons land speelt hier natuurlijk doorheen. Willen partijen hier geld in steken? Als alles gaat volgens plan, dan gaat in 2015 de eerste paal de grond in en komen eind 2016 de eerste bewoners in de nieuwe huizen.
In groepen kon gediscussieerd worden over verkeer (verschillende vormen van ontsluiting werden gepresenteerd), over ecologie/duurzaamheid en over het type huizen dat zou moeten worden gebouwd. Genoeg discussie over de verhoudingen junioren/senioren woningen ten opzichte van huur/koop en sociale woningbouw. Daarnaast veel protest tegen een mogelijke ‘ringweg’ ten oosten van de Grote Buitendijk, een volgens velen niet haalbaar en te duur plan voor slechts de ontsluiting van 80 woningen. Aanpassing van de Grote Buitendijk in de huidige 30 kilometer zone is echter dan onvermijdelijk.
Veel stof tot discussie, men kon opschrijven wat men vond en vragenstellen aan ambtenaren en ontwerpers. Na afloop een hapje en een drankje, een leuke gelegenheid om met de buurtbewoners en mensen van de gemeente van gedachten te wisselen over de toekomst van de wijk.
Uiteraard blijft de actiegroep het gehele proces de komende jaren bewaken. Maar van actie is echter geen sprake meer. Peter Luit: ‘We hebben de afgelopen jaren gestreden voor het algemene belang. Nu verreweg de meeste wensen op dit gebied zijn ingevuld, is het woord aan de individuele bewoner. We gaan geen afzonderlijke klachten behandelen, dat moeten de bewoners nu echt zelf doen’.
U kunt ook de vergote versie bekijken van de gemaakste 3D weergave. Even geduld bij het ophalen van het beeld, dit vanwege de grootte van het bestand. Afhankelijk van uw browser kunt u in- en uitzoomen en details bekijken.

‘Voor later’ – de Grote Buitendijk november 2010 vroeg in de ochtendmist (foto Peter Luit)